CATEGORIES
SOLUTIONS
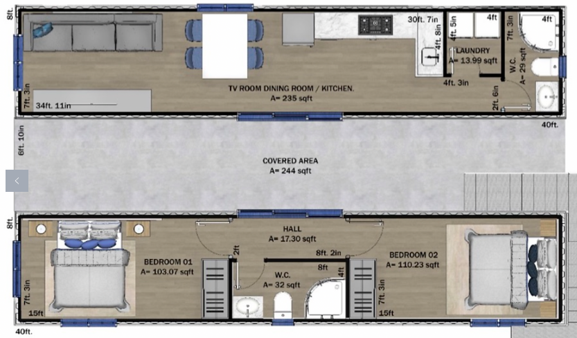
Family Living Space
960 sq. ft.
Sleeps: 3
with your local builder via our Premium Program
1 bath · 192 sq. ft.
1 bath · 396 sq. ft.
1 bath · 388 sq. ft.
1 bath · 213 sq. ft.
1 bath · 336 sq. ft.
1 bath · 546 sq. ft.
bath · 900 sq. ft.
Please first log in with your member account to book an appoinment.
Please get our membership Premium Plan to book an appoinment.
Appointment is booked successfully.
"*" indicates required fields
Already a member? Sign in