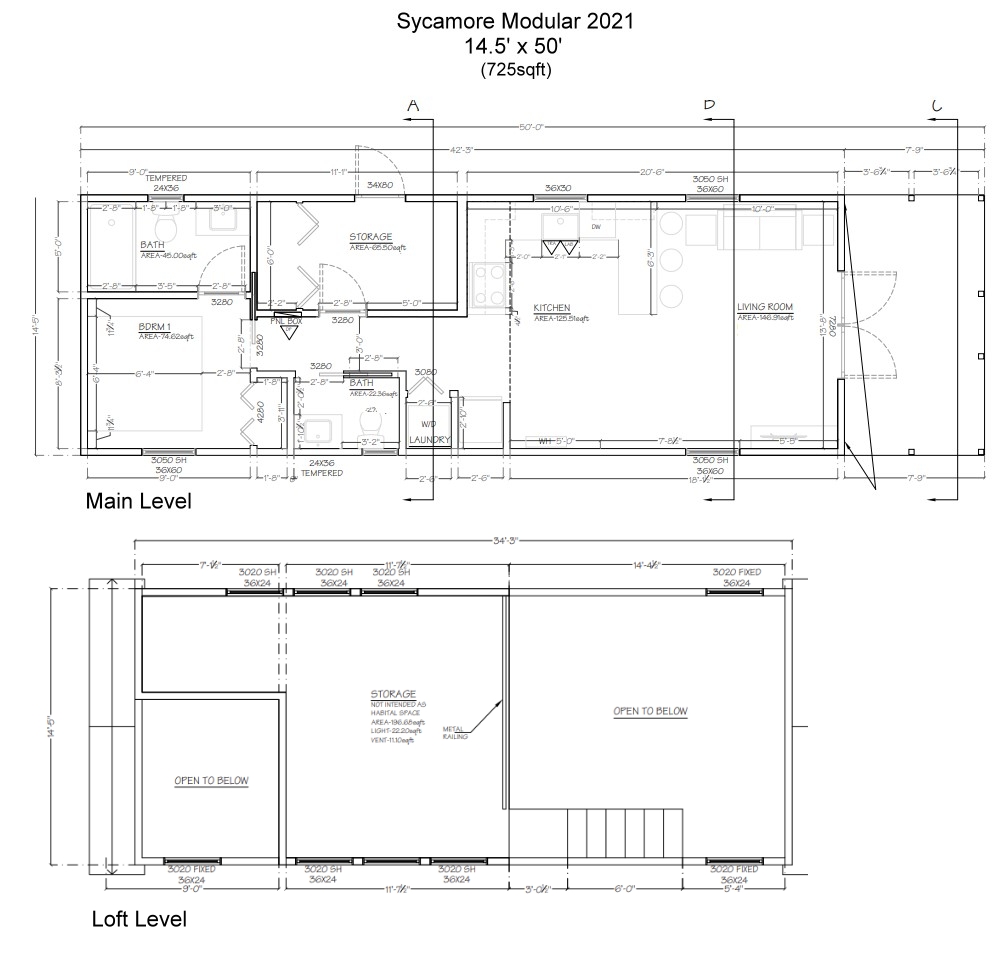
Mustard Seed Tiny Homes has done it again with The Sycamore Tiny House. The Sycamore is an upscale Park Model size home designed for a family. All of the modern features that set Mustard Seed apart are represented in this beautiful tiny house.
Built for semi/permanent placement, The Sycamore is perfect for couples or a family of six. This beautiful tiny home provides plenty of room and comfort for a family lifestyle! Just like the Harvest, The Sycamore can be designed as a Park Model or scaled up even further as a Modular tiny home.
Floor plan

with your local builder via our Premium Program
