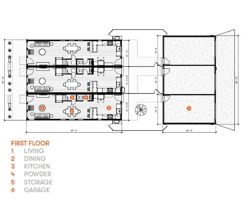
Perfectly suited for 50′ wide lots at an approachable price point, The Sloan Triplex provides 3 efficient units, each with backyards, and private off-street garages. The open concept living, dining, and kitchen offer generous cabinet storage and an eat-in peninsula, while a powder room below the stair maximizes the functionality of the main level. With generous windows at both ends, the kitchen leads out to a cozy backyard oasis, and access to a private garage each with room for storage. Perfect for a small family, or a pair of renters seeking more space, the second level features vaulted ceilings in each bedroom with efficient built-in closets, two en suite bathrooms, and a laundry closet.
Floor plan

with your local builder via our Premium Program
