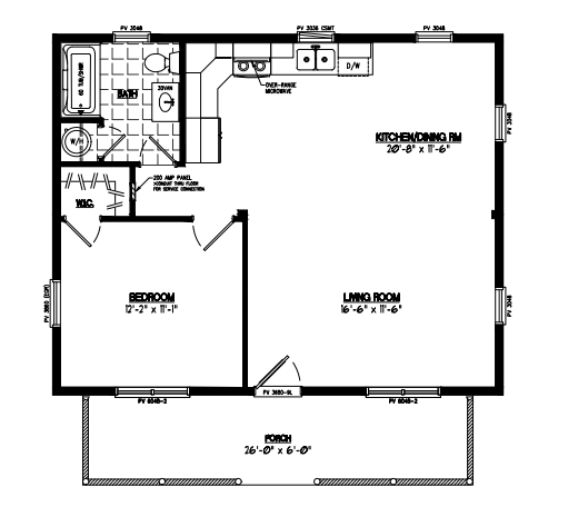
The Musketeer is a great choice for single story living, giving you the traditional Cape Cod look but keeping all of your living space on one floor. This makes it a great choice as a retirement home, or any of the many reasons you may have for wanting to keep everything on one floor. This model is one of our personal favorites, a home we recommend for form, function, and value.
If you love porch space, there’s plenty to enjoy with the Musketeer. A 6′ deep porch across the front of the home provides plenty of space for relaxation. The beautiful log railing system offers safety and security while being quite aesthetically pleasing.
Floor plan

with your local builder via our Premium Program
