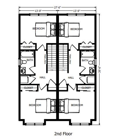
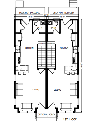
The Melrose plan is a multi-family style plan which features two bedrooms in each unit. The plan contains two floors and the option to add as many units as necessary. The first floor features a wonderful open concept layout, which includes a laundry closet.
Floor plan

with your local builder via our Premium Program
