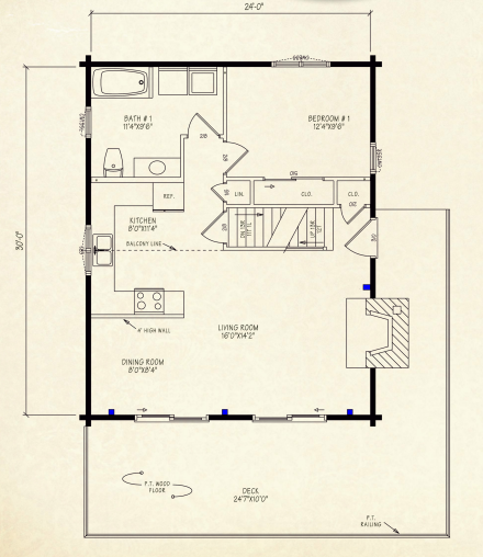
Ample decks make The Berkshire a natural for outdoor living. Inside we’ve set up an efficient kitchen with an adjoining dining room and living room tucked under a magnificent cathedral ceiling. We’ve also left lots of room for a warming fireplace. Also on the first floor, the master bedroom sits across from a full bath. You’ll find two more bedrooms and another bath upstairs for children or visiting friends.
Floor plan

with your local builder via our Premium Program
