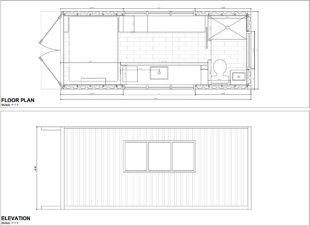
This compact home is truly a “tiny” house! At 160 square feet, it still finds room for a queen-size bed, custom tiled walk-in shower, refrigerator and more! The full-glass front doors, made from the original container doors, swing 270° to allow the outdoors in and indoors out. Inside features a custom Murphy bed that turns into a sofa in the day and a super-comfy queen bed at night. The rooftop deck offers a great place to relax, fire up a grill or stargaze at night. The clean, sleek cable railing makes the deck a safe place while still offering unrestricted views of the surroundings. Quartz or epoxy barn wood countertops, pine shiplap throughout and a custom-made sliding barn door complete the interior of this exquisite, cute CargoHome.
Floor plan

with your local builder via our Premium Program
