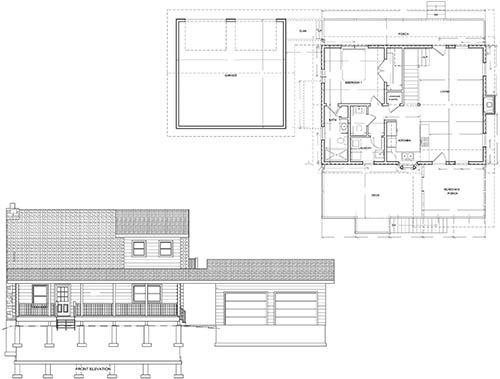
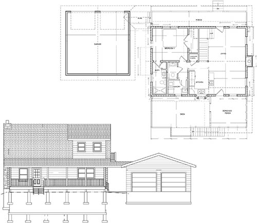
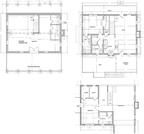
The Teton is a classic log home design that Estemerwalt has built many times. This efficient, two-story floor plan has a striking exterior enhanced by a spacious covered porch and large shed dormers on the roof, front and back. The front entry leads into the main living area, which includes a great room, kitchen, pantry, half-bath, laundry room, and master suite. A hearth in the center of the great room will be the gathering place to make memories. Upstairs is the second bedroom, with full bath and ample storage area. In the walk-out basement is the third bedroom and third full bathroom, with plenty of storage as well. The Teton will put a smile on your face every time you arrive home.
Floor plan

with your local builder via our Premium Program
