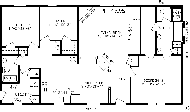
This 1717 sqft., three bedroom, two bath home blends residential appeal with modern luxuries. Your first step into the formal foyer invites you to the modern kitchen and spacious living area.
The master suite features a glamorous bath with a walk-in closet. This open floor plan is perfect for entertaining with space for the whole family.
Floor plan

with your local builder via our Premium Program
