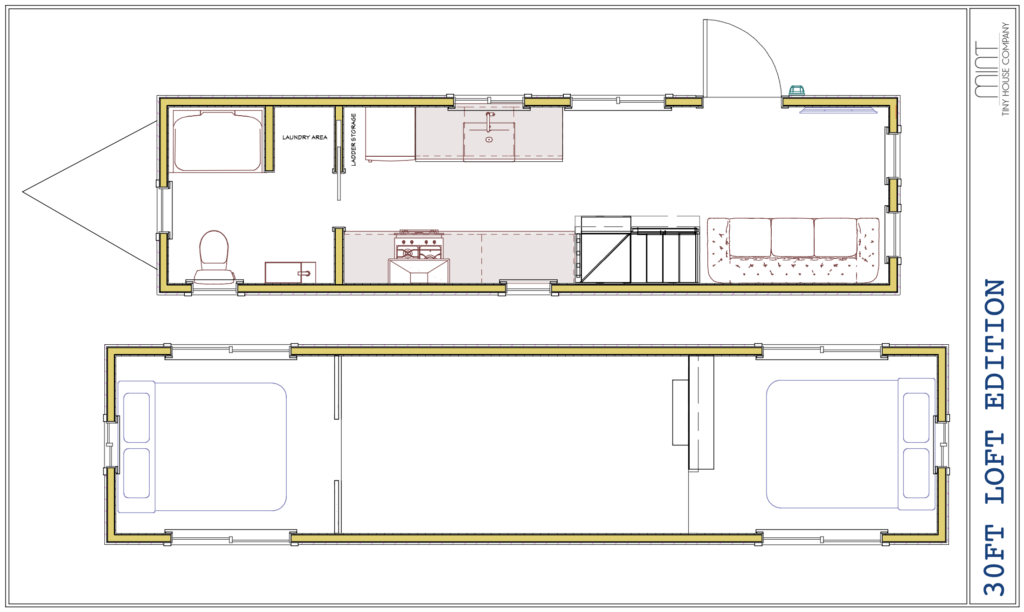
Tiny House on Wheels
Mobile
350 sq. ft.
Sleeps: 4
Designed with small families in mind, it is known for its 2ft loft overhangs, one on each end of the home. This allows for an open living space within the home without cutting into your loft/sleeping area! This home can accommodate a downstairs bedroom or media room!
Floor plan

with your local builder via our Premium Program
