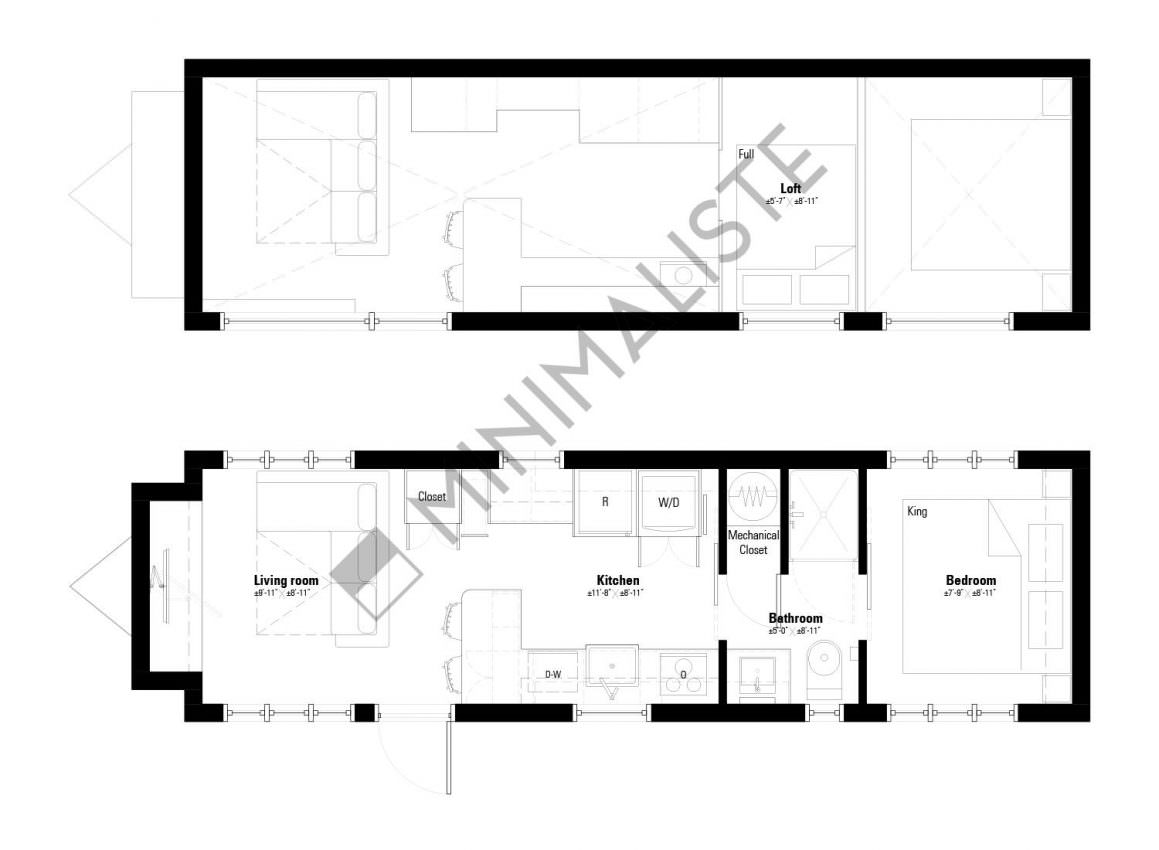
With a wingspan of 10.5 x 34.5 feet, The Magnolia is considered a ‘’park model’’ size tiny house. It was built to withstand northern Ontario weather and is inspired by our Ébène and Laurier models. Our clients wanted a single loft and a full height bedroom on the main floor, like featured in the Laurier. On the other hand, they also wanted to include a TV area in a ‘’bump out’’ like in our Ébène model. Since they chose a custom unit, they also wanted a unique interior design including their own ideas based on their specific needs. Working along with them, we created this one bedroom tiny house on wheels based on their requirements, keeping the Minimaliste style. Here is a more detailed presentation of this project.
Floor plan

with your local builder via our Premium Program
