The Farmhouse style is simple and beautiful; it’s a classic. Black and white is the theme, inside and out, with white siding and black windows on the exterior, and black countertops and white cabinets inside. Gray tone wood panel flooring brings a touch of color and texture.

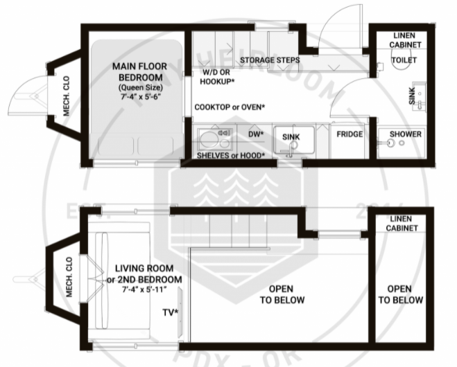
Floor plan

with your local builder via our Premium Program
