Hodges

Starting at $10,000

Family Living Space

1152 sq. ft.

Sleeps: 4

About

Property

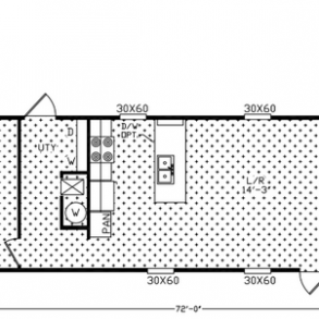
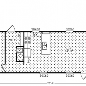
Floor plan

Floor plan
banner

Floor Plan

Book an appointment

with your local builder via our Premium Program

  • Our innovative process to find you a builder for your house
  • Gets multiple quotes from our trusted builder
  • Find guaranteed best price and helpful resources for planning, financing
  • Priority service - faster response, go to the front of the line for builders