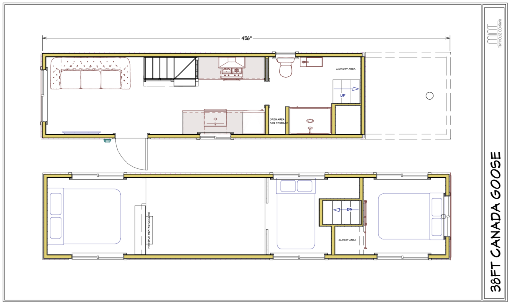
Tiny House on Foundation
358 sq. ft.
Sleeps: 6+
The Canada Goose is the ultimate luxury! Designed with a bedroom over the gooseneck hitch that you can stand up in, it still allows for two full size lofts, and much more!
This tiny house RV allows for privacy, space, and relaxation. Which is everything you can ask for in a home!
Floor plan

with your local builder via our Premium Program
