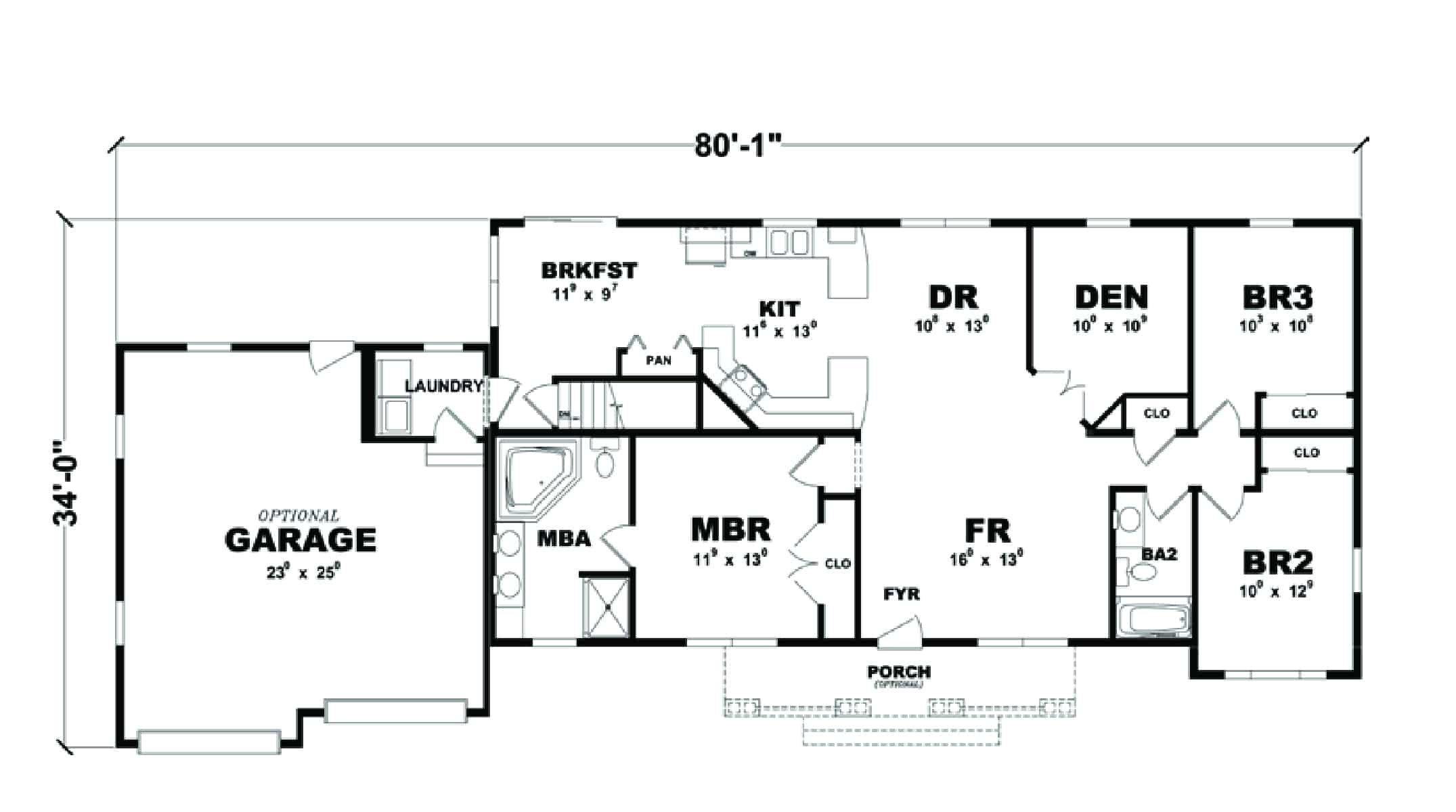
The Bishop’s gables make a statement by framing the porch and windows across its face. The optional den inside adds extra room for late night study sessions, band practice, or games with the family.
Floor plan

with your local builder via our Premium Program
