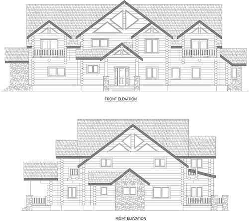
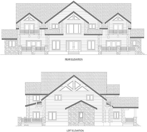
With ample square footage, soaring cathedral ceiling in the great room and generous outdoor living spaces for entertaining family and friends, the Berkshire is a lodge-like rustic sanctuary. This design is perfect for lakeside or mountain living, with plenty of space for making memories. The stately front elevation of the Berkshire is anchored by the great room’s bank of 10 windows, a massive stone chimney on the left and seven stone pillars along the exterior deck.
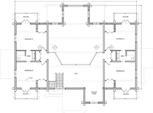
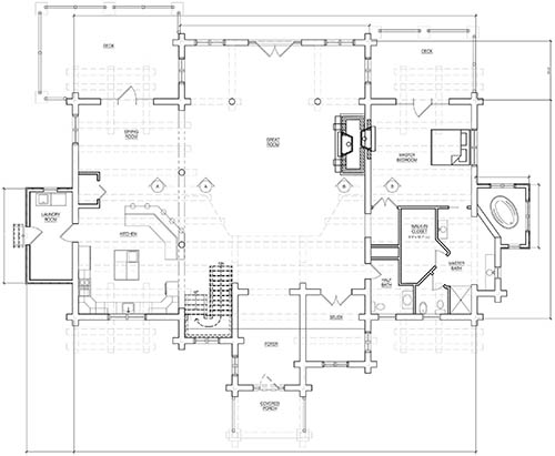
Gun-stock posts and massive timber trusses overhead greet visitors at the covered entryway. A grand foyer leads directly into the great room, kitchen and dining area, including striking windows to take in your view. At days end, the master suite is mere steps away. The master has its own fireplace and has its own deck. Upstairs two full baths and four more bedrooms await, each bedroom equipped with its own balcony for taking in the great outdoors. The Berkshire is a great design for those wanting a spacious, elegant home.
Floor plan

with your local builder via our Premium Program
