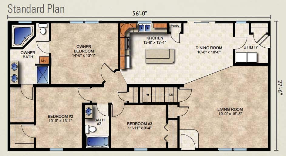
This three-bedroom, two-bathroom ranch style home offers an open concept layout between the kitchen and spacious living room, making it perfect for entertaining or spending time with family and friends. The master bedroom includes a large en suite bathroom and walk-in closet with lots of space.
Floor plan

with your local builder via our Premium Program
